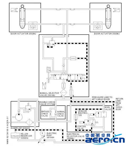
A320飛機的貨艙門作動系統由艙門作動筒、選擇活門、ELECTRO-MANUAL活門、作動筒鎖定指示系統、黃液壓系統、手動泵等組成。從黃系統電動泵或手動泵來的液壓壓力經過ELECTRO-MANUAL活門,在選擇活門控制下操縱貨艙門作動筒,完成貨艙門的收放。下面簡述一下系統中的幾個主要部件的特點:
首先是貨艙門作動筒。每個貨艙門有兩個作動筒,設計原則是只要一個作動筒工作正常就可以完成收放操作。作動筒長度可調,內部有一個內鎖機構(見附圖1),內鎖機構可以將作動筒鎖定在全伸位;此內鎖機構操縱一個微動電門,微動電門的開合指示了作動筒是否在全伸位鎖定。注意,由于實現該微動電門功能的電路元件為一個三極管(見附圖2),在A、C端未加電壓的情況下,只要該三極管沒被擊穿失效,A、B端的電阻肯定為無窮大,因此我們不能通過在斷開電插頭情況下測量A、B兩頭電阻的方法來判斷微動電門的開合。
另一個是選擇活門。該活門內部的控制機構為一個滑閥(附圖3,滑閥由一個手柄操縱,手柄有三個位置:貨艙門收上位、中立位、貨艙門打開位;當手柄在中立位時內部的滑閥切斷作動筒的收、放油路,使貨艙門可以保持在當前位置。選擇活門的另外一個特點是,我們在關貨艙門時,選擇活門的控制規律會先向貨艙門的打開管路供壓,以避免長時間將貨艙門保持在開位后由于系統內漏致使在關門操作時艙門突然下落的情況發生;因此我們在關閉貨艙門時發現貨艙門先向上走一段然后再收回是正常的。
再一個是作動筒鎖定指示系統即貨艙門全開位鎖定指示系統。此系統由位于貨艙門作動筒上的兩個微動電門(每個作動筒一個,上面已有說明)和位于艙門操縱手柄旁的綠色指示燈組成,指示系統的電源是28V直流電,兩個微動電門串聯接入系統(附圖2)。當兩個作動筒都在全開位鎖定時燈亮,當兩個作動筒中的任何一個沒有鎖定時燈熄。我們可以通過它來判斷作動筒的工作情況,稍后將說明具體方法。
在介紹了上述元件后,現在可以了解一下貨艙門收放系統的常見故障。貨艙門收放系統的常見故障為艙門不能鎖定,具體為可分為三種情況。
第一種情況為艙門在全開位能鎖定,在非全開位不能鎖定。在全開位能鎖定說明艙門收放作動筒的鎖機構是工作正常的,在非全開位不能鎖定可能是選擇活門內漏或作動筒漏油引起的,可以通過觀察作動筒外部是否有油跡來作進一步判斷。
第二種情況為艙門在全開位不能鎖定,下落一段時間后鎖定。下落一段時間后能鎖定說明選擇活門工作是正常的,可以確定為作動筒引起。一般來講出現這種情況的可能性較小,因為兩個作動器只要一個鎖定就能將艙門鎖定在全開位。出現這種情況只可能有兩個情形,一個是兩個作動筒都故障,另一個是兩個作動筒都未按要求安裝,出現較大長度偏差,造成在全開位時只有較短的能鎖定,而此時恰恰長度短的作動筒故障,這種情況下必須要重新調節作動筒的長度。
第三種情況為艙門在任何位置不能鎖定,出現這種情況的可能為兩個。一個是艙門作動筒滲漏且此時兩個作動筒都未按要求安裝(兩個作動筒的長度都過長),在艙門全開位由于作動筒內鎖機構無法作動不能鎖定艙門,在非全開位由于滲漏亦不能保持。另一個為選擇活門內漏嚴重,根本無法將貨艙門打開到全開位,艙門內鎖機構無法作動。
從上面對艙門操縱系統故障的分析中可以看到,安裝艙門作動器時調節作動器長度到合理位置是十分必要的,規范的安裝可以在出現故障時縮短我們的排故時間,減少人力物力的浪費,亦可以增加系統的可靠性。
這兒有一個方法即可以用來判斷安裝是否合理,亦可以用它來作故障隔離。通過前面的介紹我們知道當兩個貨艙門作動器都正常時,在全伸位將觸發位于作動器上的兩個微動電門,接通作動筒鎖定指示電路,位于選擇活門旁的指示燈會亮。因此可以用它來判斷安裝是否正確,指示燈亮是安裝正確的必要條件。另外我們也可以用它來作故障隔離,作動器插頭上有三個插孔A、B、C,查看電路圖(附圖二)
可以知道A、B插孔對應微動電門的輸入輸出端,微動電門作動的效果就是短接這兩個插孔。我們可以用同時脫開兩個插頭并短接兩個插頭上的A、B插孔再查看指示燈工作情況的方法來判斷燈回路的工作情況,若燈亮則說明指示回路正常,當然燈也是好的,若燈不亮就需要對指示回路進行排故了。我們可以用脫開一個插頭然后將脫開插頭上的A、B插孔短接并保持另一個插頭插上再去查看指示燈工作情況的方法來判斷哪個作動筒沒有鎖定,燈亮說明插頭插上的作動器是鎖定的,不亮則說明插頭插上的作動動器故障。
附圖一

附圖二

附圖三
